Rue Caplat
Restructuration et réhabilitation Plan Climat de 16 logements
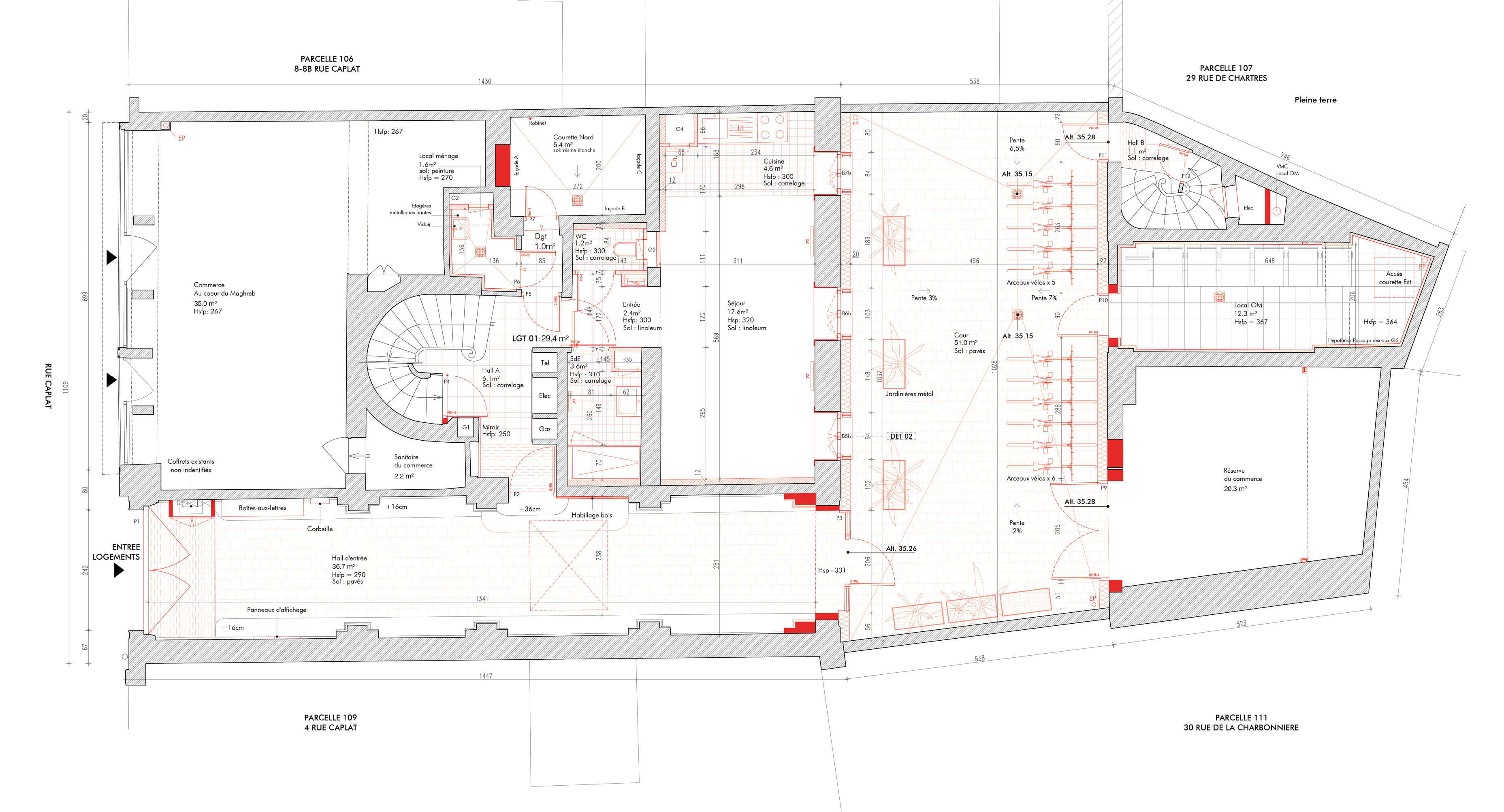
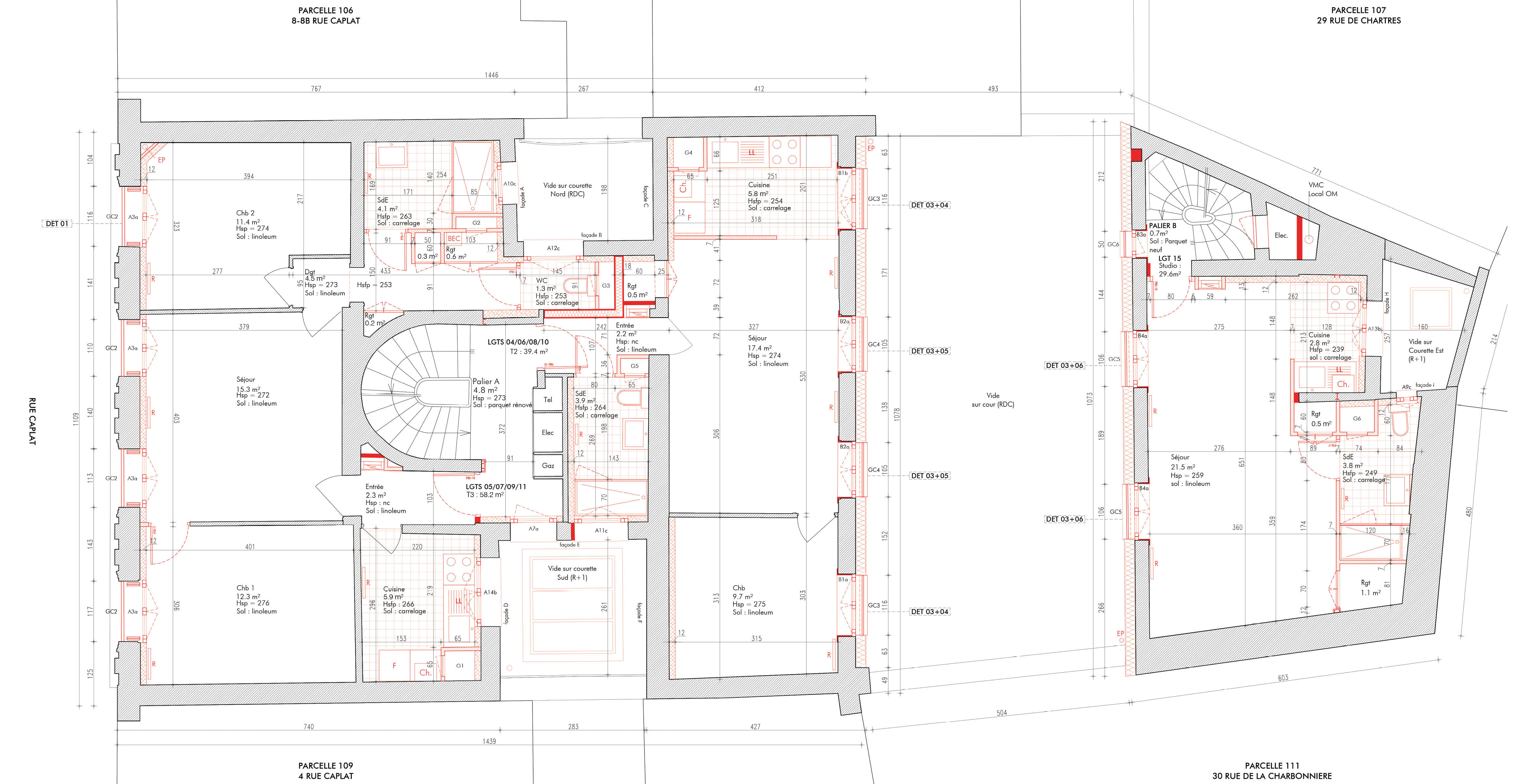
La réhabilitation de cet immeuble style Louis-Philippe a été une opportunité pour améliorer le confort des parties communes et pour modifier la typologie des logements.


La rue Caplat dans le 18e arrondissement de Paris est remarquable par la présence de plusieurs immeubles ornés de style Louis- Philippe construits dans les années 1840. L’immeuble au n°6 s’inscrit dans ce style néoclassique. Sur la façade, des corniches supportées par des pilastres reprenant les trois ordres antiques séparent chaque niveau. Des pierres en bossage soulignent le premier étage et les encadrements de fenêtres sont moulurés. Deux angelots sculptés couronnent le porche décoré de macarons fleuris.

Derrière cette façade remarquable, l’immeuble est très dégradé. Il y a des infiltrations d’eau en toiture et sur les menuiseries extérieures, la ventilation y est très faible, les planchers ont de forts dévers, les parquets sont brisés. L’état de l’immeuble rend les conditions d’habitabilité très mauvaises. Par ailleurs, les surfaces sont petites et les pièces mal agencées.
Le programme initial prévoyait une réhabilitation thermique en milieu habité. Les diagnostics ont révélé la nécessité d’une réhabilitation lourde, impossible à conduire en présence des habitants : restructuration des planchers, refonte de l’ensemble des réseaux et modification de la typologie des logements.




Côté rue, ce projet de réhabilitation permet la restauration des ornements en pierre de la façade et une isolation par l’intérieur en fibre de bois. Les fenêtres sont remplacées par des menuiseries en bois et équipées de persiennes pliantes en bois. Les décors en bois du portail sont restaurés, les garde- corps restitués à l’identique.
Côté cour, nous avons opté pour une isolation par l’extérieur avec, à nouveau, la mise en œuvre d’une fibre de bois. Les garde-corps en fer forgé sont déplombés, adaptés et calepinés pour s’intégrer dans les précadres en acier prévus autour des fenêtres. La couverture en zinc est reprise à neuf et les lucarnes reconstituées à l’identique.
Cette réhabilitation permet aussi de repenser entièrement la séquence d’entrée. L’ancien porche est transformé en un hall bénéficiant de lumière naturelle grâce à la construction d’une verrière en toiture. Les aménagements intègrent le réemploi in situ des lames de parquets pour la réalisation du faux plafond et des revêtements muraux. Dans la cour, la mise en œuvre de pavés, l’amélioration de l’évacuation des eaux pluviales et l’installation de jardinières améliorent la qualité d’usage au quotidien.



Le mot de Là-haut
L’opération devait se dérouler en milieu habité mais, face à l’ampleur des travaux à réaliser, la RIVP a dû entreprendre le relogement des locataires. Le relogement n’est jamais évident. Il est souvent long et peut-être dérangeant pour certain locataire. Du point de vue opérationnel, Il entraine une incertitude dans le planning et la date de démarrage des travaux.
Fiche technique
Adresse
- 6 rue Caplat, 75018 PARIS
Maître d'ouvrage
- RIVP
- Mme. Camille Hoefler
Montant des travaux
- 2.4M € HT
Surface
- 1 141 m² SDP
Calendrier
- Chantier en cours
Année de construction
- Années 1840
Certification
- NF Habitat Rénovation
Label
- Rénovation 150
Performance
- Cep 193 kWh/m² avec un gain de 36 %
Partenaires
- TISCO - BET structure
- IE Conseil - BET fluides, thermique et environnement
- C2P Ingénierie – Economiste
Entreprises
- BECIA – Entreprise générale
Crédits photographiques
- M. Vincent Baillais